A platform for dreaming of and making a new world
Sydney is planning its first future technology precinct, located adjacent to Central Station and identified as the “Central Precinct” or Tech Central. Australia’s most successful technology company, Atlassian, is proposing a tower to house their Australian headquarters, to be sited adjacent to Sydney’s Central Station. The tower will be a catalyst in the realisation of what is becoming known as “Tech Central”, Sydney’s first technology hub.
TERROIR was brought into the design team at there request of our friends at EC3 in Los Angeles who had commenced initial design and workplace aspirations briefing and site capacity testing. Our role in the design team was extremely broad encompassing roles that spanned planning and urban design advice to detailed design work with the broader consultant team.
Specifically, we were the Lead Urban Designer for the team (providing urban design advice and testing to inform precinct wide coordination with other stakeholders), were involved in Stakeholder and Commercial negotiations and gave input into the precinct-wide rezoning and planning process through various workshops and presentations to Government and were directly responsible for the production of the urban design including reference scheme, visual assessment and solar analysis reports for Atlassian site as part of rezoning application.
At the scale of the building, we prepared alternative reference designs to provide design solutions to test integrated design brief outcomes for a series of scenarios based on the integrated design team work. This work informed the Design Competition brief which we assisted in preparing after which we were Technical Advisor on the competition itself.
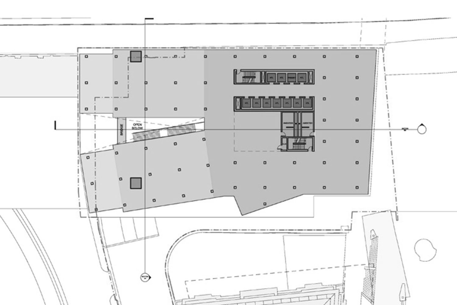
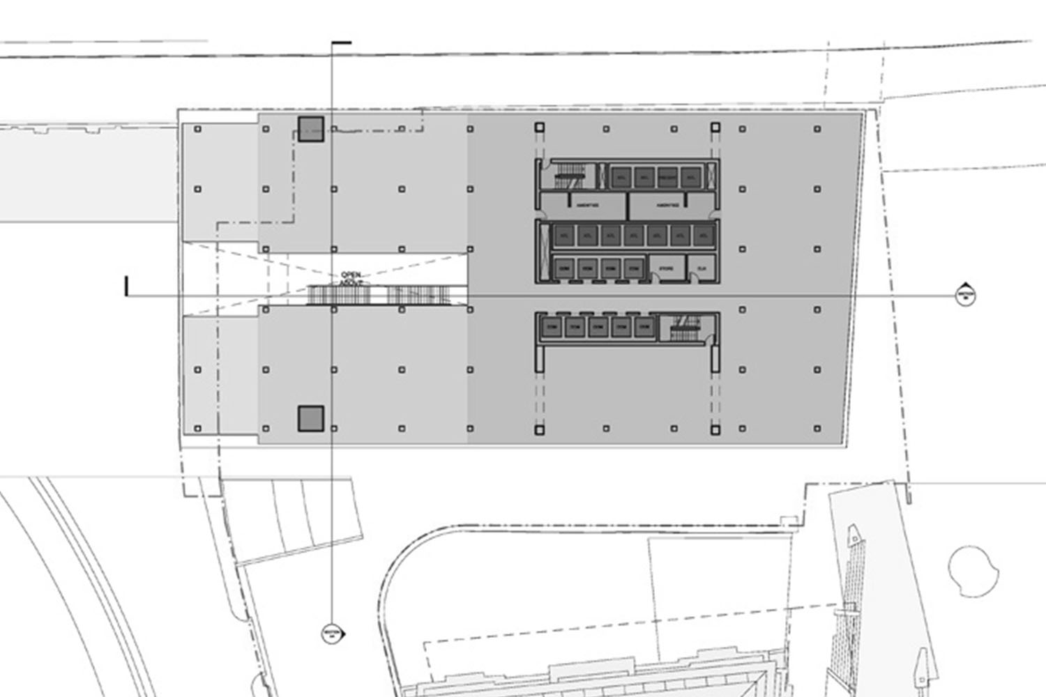
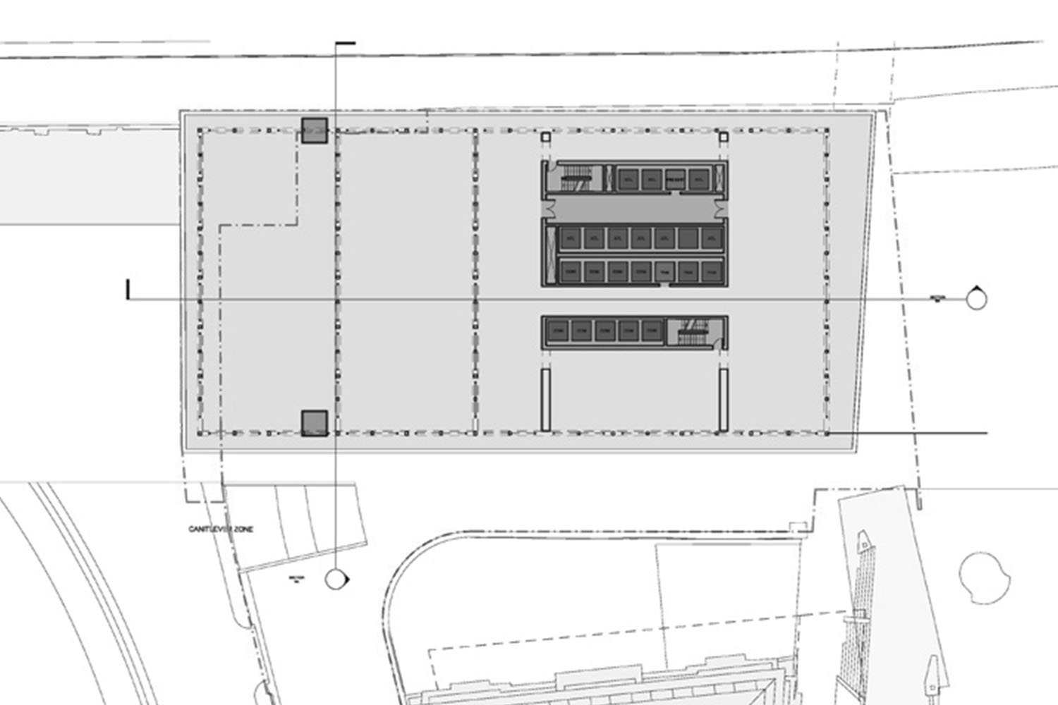
Tasked with thinking through how Australia's tallest timber structure might be located in a tight context - with multiple intersections of mass transit, public domain and heritage above and below ground - we were to ensure that all key decisions would add to urban quality. To understand the various layers in play required a huge amount of precinct analysis, site analysis and use analysis in terms of the transit project. These understandings were then triangulated and intersected with the needs and ambitions of Atlassian for their new HQ, which also included a cross section of inputs from the philosophy of the company, their approach to workplace design and the myriad technical and structural inputs for such an innovative building. The result was a finalised brief for a competition process, the results of which have delivered on stakeholders' ambitions for the precinct.
> BUILDINGS > STRATEGY > URBAN > RESEARCH