Building as garden
When considered as an empty shell in the context of its site, the building and site together could be said to constitute a particular landscape within which new work is required. This idea of the site as landscape is a conception central to many TERROIR projects and is particularly relevant here in both the building and garden given their scale, suggestive of a landscape as opposed to suburban scale. This situation is given further particularity due to the inside/outside nature of the site and building. The building interior is a landscape of intense interiority, while the garden is a landscape of exteriority but contained within an interior boundary (site fences).
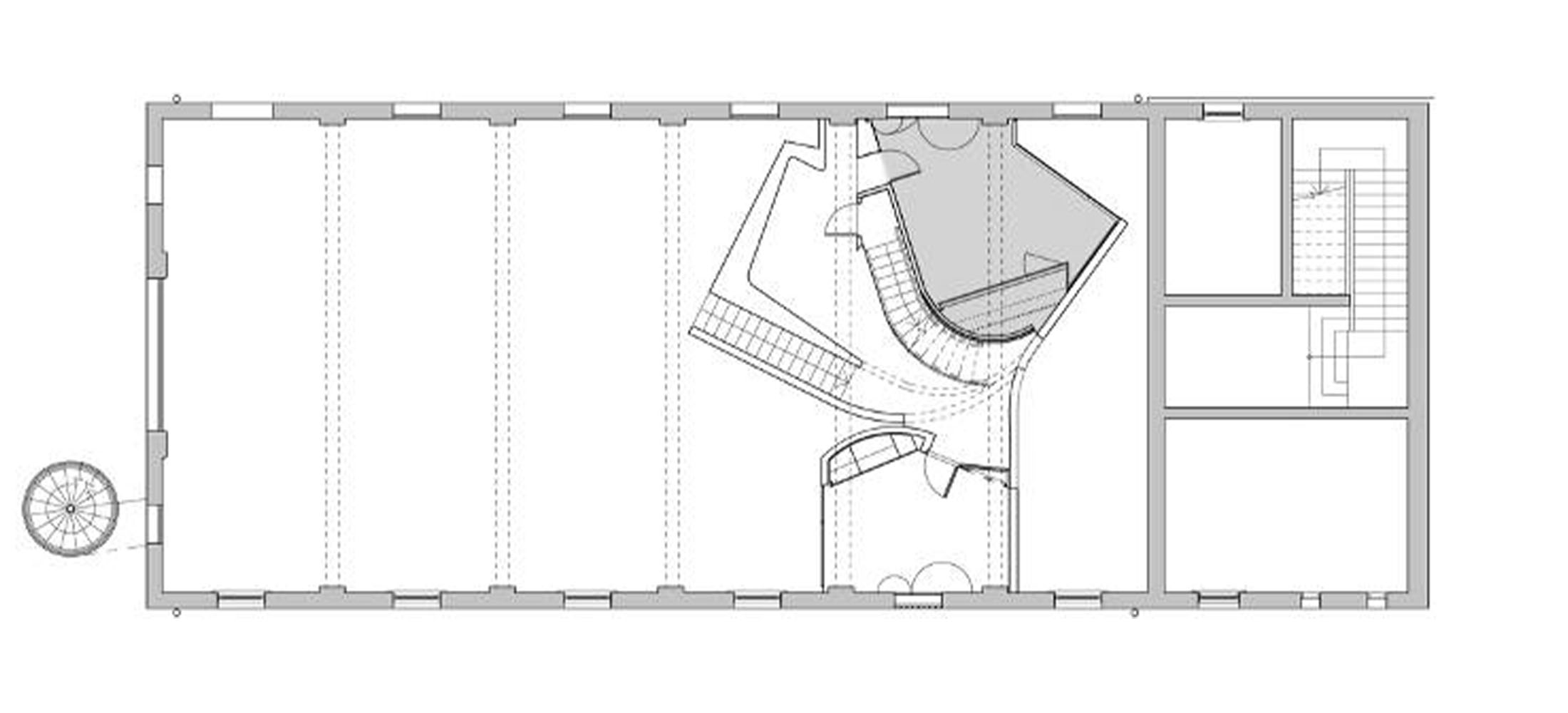
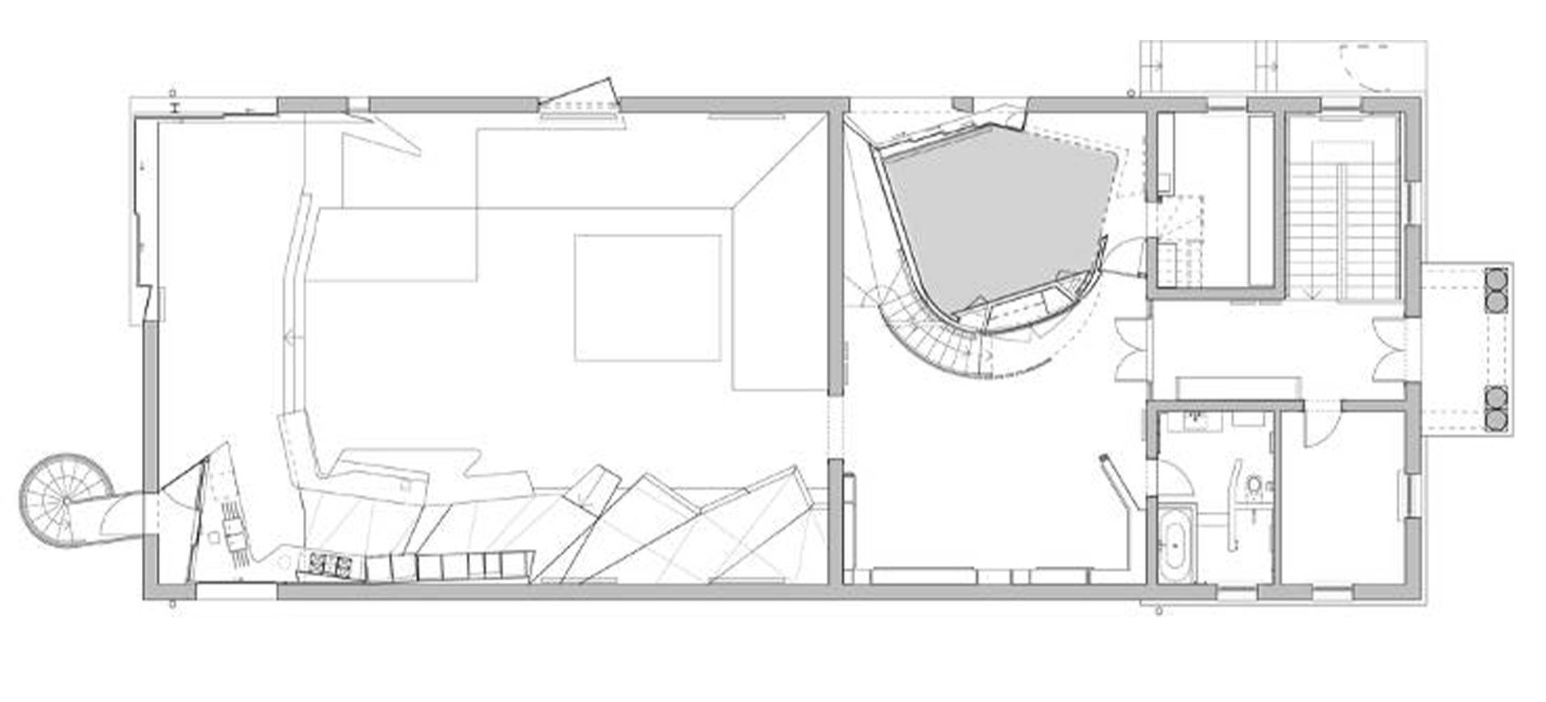
The new occupation of this building in a residential mode significantly changes both the pattern and type of use of the site. The landscape is gathered up into a vortex that presses into the building, while inside, a series of nested spaces address issues of scale and occupation. These interiors operate like Russian dolls, or alternately the finely tailored clothing worn by the client, with interior linings that speak of an alternate exterior. As with this clothing, the insertions into the existing building take the occupant further and further into an embedded interior until, in a moment of unexpectedness, they press against the exterior and break through to the garden.
Ghosted image of existing hall showing relation of garden from exterior to interior, challenging the visual barrier of the existing container
> BUILDINGS > STRATEGY > URBAN > RESEARCH